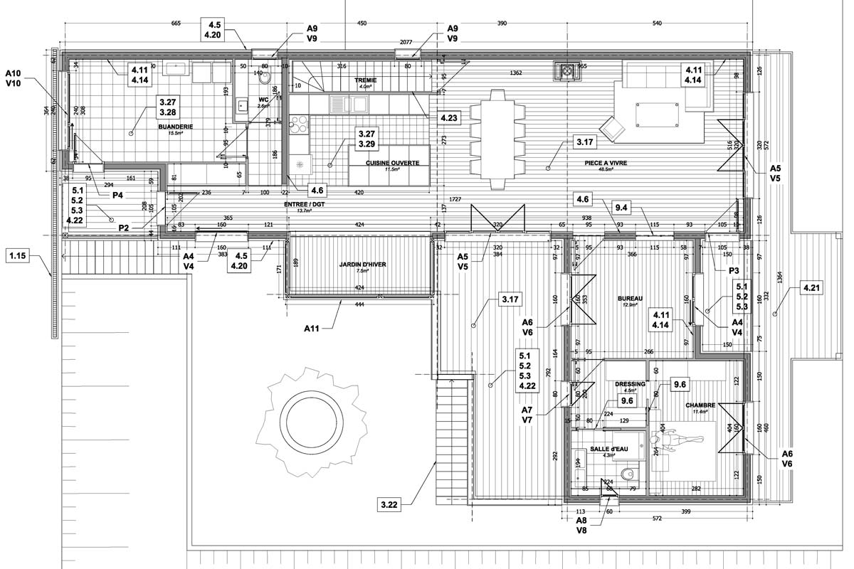
Maison en L à Veneux

Picto maison individuelle MAISON en l

///Maîtrise d’ouvrage : privée

///Maîtrise d’œuvre : S. Huet/Woody Architecture

///Surface : 220 m²

///Calendrier : projet livré 2019

///Programme : maison individuelle.

Une maison à flanc de coteau.

C’est la configuration et la nature du terrain qui ont dictés la forme et l’implantation de cette maison. Construite à flanc de coteau le long de la Seine, on y entre par l’étage, puis on descend au niveau bas pour trouver une chambre et un appartement indépendant.L’ensemble du socle à été réalisé en béton banché afin d’assurer le soutènement des terres, puis isolé par l’intérieur. Ce socle supporte une structure en ossature bois qui bénéficie d’une grande terrasse au sud, et d’un balcon filant donnant sur la Seine à l’est. La maison est chauffée par un poêle de masse situé dans le salon, qui profite de l’inertie du socle béton pour diffuser dans l’ensemble des espaces de vie.
FERMER LE MENU
sed venenatis Lorem mi, neque. felis sit Aenean luctus dictum